Hauptmenü
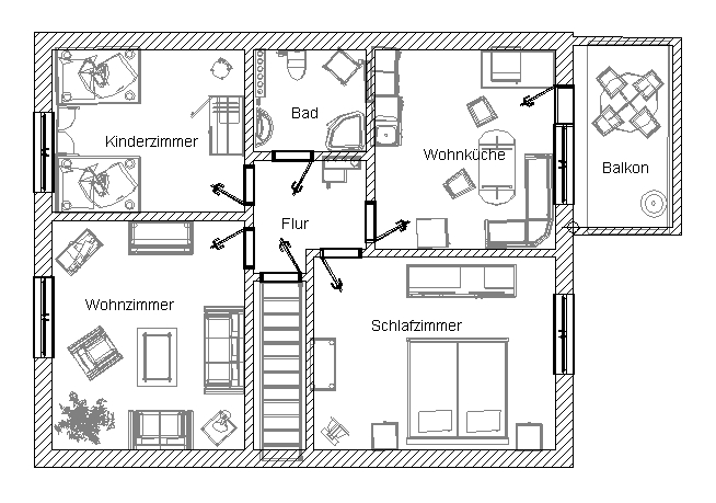
Wohnung 1 - Wrixum
Homepage | Nordseeinsel Föhr | Wohnung 1 - Wrixum | Wohnung 2 - Wrixum | Lageplan | Links | Impressum | Sitemap